Annie Street Residences | DEN Property Group
Close Main Menu

One of the Best Values in Bouldin Creek w/ STR Possibilities

Annie Street Residences

Bouldin Creek, Austin TX 78704

Active
View All 22 Photos

Virtual Tour

Amenities

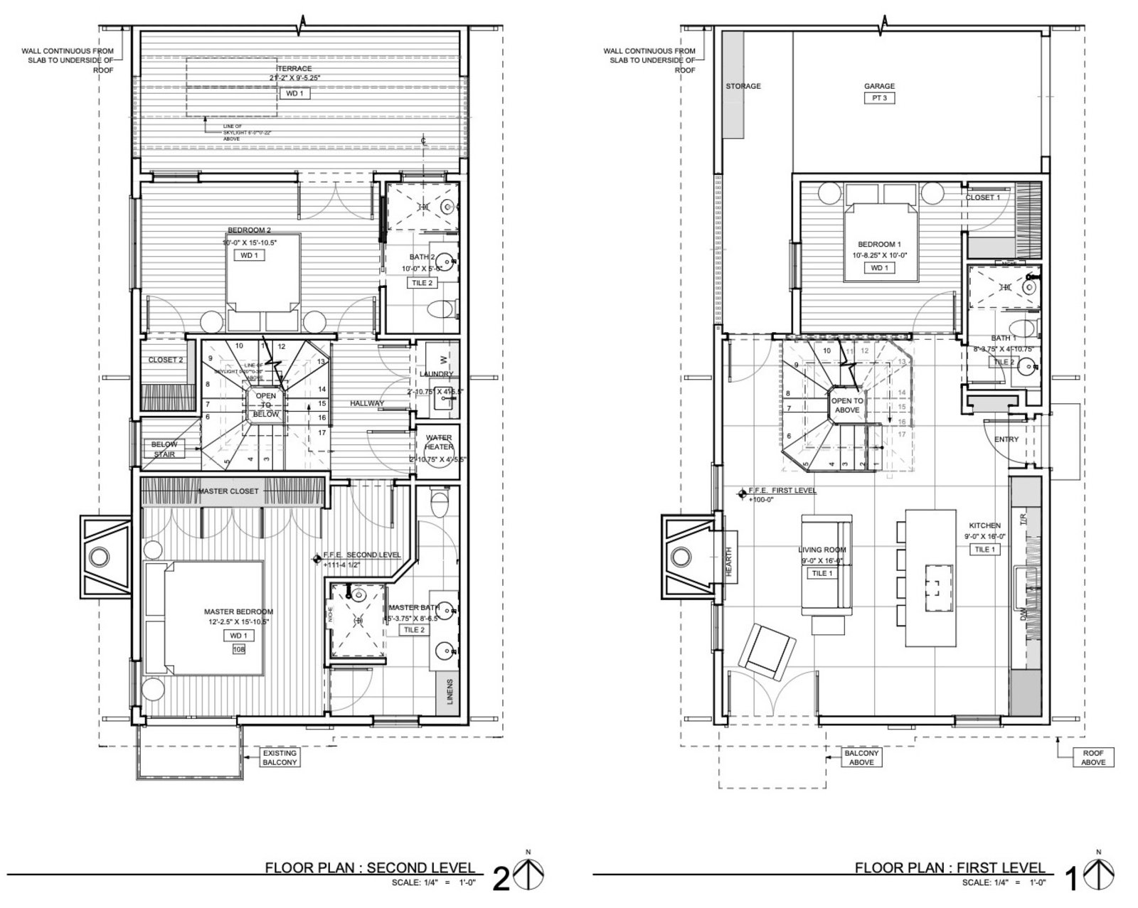
  • New Construction
  • Designed by Webber + Studio
  • Thermador® appliances
  • Fireplace
  • Large Lot
  • Hardwood Floors
  • Open Floor Plan
  • EV chargers in the Garage
  • Level 5 Wall Finishes
  • Mini splits in the terraces
  • Wifi Access Points in 1st and 2nd Floors
  • Cat6 Cable in All Rooms
  • Power to the Bidets
  • Dual Zone HVAC control
  • Concealed Appliance Garage
  • Slot Diffuser Vents
  • Power to terrace openings for future screens or shades
  • Pella Metal Clad Windows
  • Foam Insulation
  • RC Channel on the 1st Floor Ceiling
  • Balconies with Metal Railing
  • Wired for Security Cameras
  • “Very Walkable" Walk Score of 84 & "Very Bikeable" Bike Score of 70 (Source: WalkScore.com)
listing

Presented By

BRYAN CADY, Co–Founder
Assoc. AIA, Broker, REALTOR®
DEN Property Group
(512) 731-7489
connect

Get in Touch

Send Inquiry
1111 W Annie St
Austin, TX 78704
Loading...